祝賀星明科技公司生產的
有源濾波器產品應用在福安市同康金屬制品有限公司,我們不僅為同康金屬制品有限公司提供有源濾波器,還為其提供技術支持,選擇星明科技公司有源濾波器產品讓你無后顧之憂。

星明科技為福安市同康金屬制品有限公司提供諧波治理方案,里面內容星明簡單敘述一下,詳情可以進星明科技站點http://www.kasah.cn/查看的!
三、無功和諧波的危害:
(1)在電力系統中,感性和非線性負載廣泛存在,它們產生大量的無功諧波,對電網和 用電設備產生很大的危害。 (2)無功增加供電設備容量增加設備投資。
(3)無功增加供電設備及線路損耗。
(4)無功影響供電電壓,降低產品質量。
(5)縮短生產設備使用壽命,導致不必要的運營成本。
(6)諧波增加供電設備及線路損耗,大量3次諧波電流導致中性線過熱甚至發生火災。
(7)諧波影響各種敏感用電設備的正常工作。
(8)諧波會引起并聯諧振或串聯諧振,嚴重威脅電力系統安全運行。
(9)諧波會導致保護盒控制裝置的誤動作,造成生產事故。
(10)諧波會對鄰近的通訊系統產生干擾。
(11)理想的公用電網所提供的交流電壓應該是頻率固定、幅值穩定的正弦波形,諧波的出現,對公用電網無疑是一種污染,它使用電設備所處的環境惡化,也對周圍的通信系統 和公用電網以外的設備帶來危害,具體表現為以下幾個方面:
(12)諧波影響各種電氣設備的正常工作。諧波對電機的影響除引起附加損耗外,還會 產生機械振動、噪聲和過電壓,使變壓器局部嚴重過熱,甚至燒毀。諧波使電容器、電纜等 設備過熱、絕緣老化、壽命縮短,以至損壞。
四、有源濾波器設計方案:
4.1 現場電能質量概況 福安市同康金屬制品有限公司出線柜1D4和1D6地點主要負荷為生 水泵設備 1.1D4 柜水泵電流為 A 152A B 162A C 137A ,電流最大值為 162A, 電壓值為 400V 左右。諧波比列ABC三相開機時 THD 值 65.7% 58.4% 57.3% 主要諧波分布 3 次和 5 次最大值 A 63.5A B74.5A C78.5A。1D6 柜電流為A 248A B 258A C 240A ,電流最大值為 258A,電壓值為 400V 左右 ,最小值為 240V,最大值為 258V。 諧波比列 ABC 三相開機時 52.6% 57.6% 57.2% 主要諧波分布3次和 5 次最大值 A 113A B123A C116A 。 第 9 頁 共 20 頁
4.2 現場電能質量選型和制訂 首先,要保證功率因數要達到要求,諧波治理方案要能夠保障主要諧波吸收或抵 消目的的實現,要保障諧波治理設備投入使用后系統電路內的諧波量 對設備影響較小;其次,系統改進方案要保障裝置自身的安全性。動 力柜穩定電流按照正常 30%的設計要求使用 400A 有源濾波器可以治 理設備的諧波. 這個安全性主要是指在系統當前存在的諧波電流、電壓的背景下,有 第三,需要設計方案的性價比,在可能的情況下盡量降低系統 造價,提高系統的實用性;

治理效果總結分析:
達到治理效果百分之九十以上,達到國家電力電能質量 規定標準數據內,使企業節省了電能,經濟效益顯著提高, 預測節能達百分之 5 點到 10 點的區間。使變壓器和用電設 備有了安全保障提高了工作效率保障用電安全。
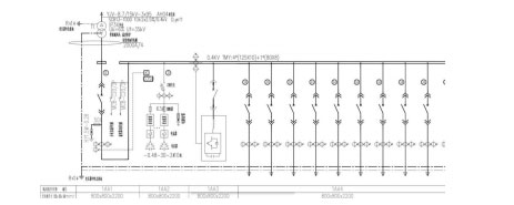
六、有源濾波器安裝現場圖
七、諧波治理的效果和總結
現場4月25日至27日調試完成現場測量結果對比效果前后,如圖所示:

在未安裝有源濾波器是經過測量 3 次和 5 次諧波較為嚴重其 ABC 三相諧波電流為 234A 246A 246A 中THD值(諧波畸變 率)為 26.1% 24.1% 29.4% 未達到國家標準。在安裝有源濾波器后并調試完成再次測量諧波 3 次和 5 次諧 波 ABC 三相諧波電流分別為 27A 15A 34A 中的THD值(諧波 畸變率)為 4.5% 2.3% 6.0%幾乎達到國家標準規定數據內。使企業節省了電能,經濟效益顯著提高,預測節能達到百分 之 5 點到 10 點的區間。使變壓器和用電設備有了安全保障 提高了工作效率保障用電安全。(下圖如國家標準電能質量 表)

選擇選購
APF有源濾波器產品選擇浙江星明科技
http://www.kasah.cn/!星明科技只做自己專注的產品,質量更有保證!星明APF有源濾波器咨詢熱線:0577-62710011 62710022